SCISSOR LIFT PALLET TRUCKS
Easy handling with scissor pallet truck
The two main types of scissor lifts are manual, i.e. manual, and electric scissor lifts (ACX 10M és ACX 10E).
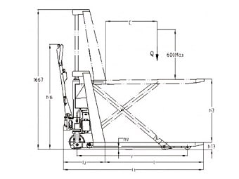
The ACX 10M/ACX 10E is a manual and electric scissor lift with a capacity of 1000kg and a maximum lifting height of 800mm. It can be used as a lifting, sorting table, workbench or even as a traditional manual pallet lift.
- Closed fittings and reinforced chassis ensure high service life
- ergonomically designed, comfortable, with good grip on the handle
- Single-cylinder requires less maintenance due to robust, strong frame
- has a quick lifting function
- does not slip while working
- has a built-in charger
- complies with European standards




| Type | ACX 10E | ACX 10M | |
|---|---|---|---|
| Mode | Electric | Manual | |
| Load capacity | Q (t) | 1 | 1 |
| Load center distance | c (mm) | 600 | 600 |
| Wheelbase | Y (mm) | 1310 | 1310 |
| Weight | kg | 152 | 122 |
| Axle load loaded, front / rear | kg | 767 / 371 | 760 / 348 |
| Axle load unloaded, front / rear | kg | 35 / 117 | 33 / 89 |
| Wheel material | Poliuretán | Poliuretán | |
| Front wheel size | mm | 180×50 | 180×50 |
| Rear wheel size | mm | 75x50 | 75x50 |
| Lifting height | h3 (mm) | 715 | 715 |
| Szerkezeti magasság, felemelt villákkal | h4 (mm) | 1660 | 1660 |
| Kezelőkar magassága | h14(mm) | 1254 | 1240 |
| Leengedett magasság | h13 (mm) | 85 | 85 |
| Teljes hossz | l1 (mm) | 1715 | 1725 |
| Teljes szélesség | b1 (mm) | 575/ 695 | 575/ 695 |
| Emelővilla méretei | s/e/l (mm) | 45/160/1170 | 45/160/1170 |
| Villaélek közti távolság | b5 (mm) | 540/ 685 | 540/ 685 |
| Munkafolyosó szélesség | Ast (mm) | 1986 | 1986 |
| Fordulási sugár | Wa (mm) | 1564 | 1564 |
| Emelőmotor teljesítménye | kW | 0.6 | — |
| Akkumulátor típusa | gondozás mentes | — | |
| Akkumulátor kapacitása | V/Ah | 12V/52Ah | — |
| Akkumulátor súlya | kg | 24 | — |